Skip to main content
IMG 8556rz
A3295 wellness chata zinka 20250108 211356 6150
A3295 wellness chata zinka 20250119 121530 5900
A3295 wellness chata zinka 20250119 121418 5775
IMG 6481

Ubytovanie

Chata pre 6 rodín

Hľadáte pokojné prostredie v horách v príjemnom ubytovaní? Ste na správnej adrese. :) V chate Zinka je ubytovanie len časťou zážitku, nájdete tu kopec služieb a aktivít pre malých aj veľkých. Pozemok je uspôsobený pre rodiny s deťmi, takže ratolesti sa môžu venovať hrám a vi oddychu a grilovaniu :). Urobíme všetko pre Vašu spokojnosť a príjemne strávenú dovolenku či firemnú akciu. Poradíme Vám s výletmi a programom v okolí, ak treba pripravíme Vám aj kompletný program pre firemné akcie.

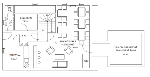
ZINKA - chata pre 6 rodín je situovaná v horskej dedine Mýto pod Ďumbierom. Z chaty sa do Ski centra Mýto dostanete cca 10 minútovou chôdzou. Chata vám poskytne kvalitné a príjemné ubytovanie počas celej Vašej dovolenky či romantického víkendu. V Chate ZINKA tiež nájdete lyžiareň, spoločenskú miestnosť a hraciu miestnosť so stolným futbalom. V prípade, že máte chuť relaxovať pripravená je pre vás fínska sauna, infra sauna, jacuzzi, ľadová kaďa, vykurovaný bazén a odpočinková miestnosť . Vychutnať si tiež môžete relaxačné masáže.

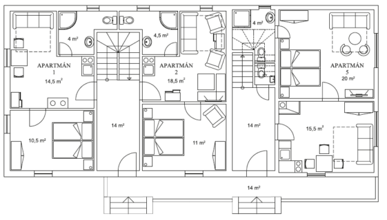
Celková kapacita apartmánov v chate pre 6 rodín je 14 pevných lôžok a 14 prísteliek, v 6-tich štýlových apartmánoch.

V chate pre 6 rodín sú:

  • dva štvorlôžkové apartmány / 2 × 2 + 2 /
  • tri päťlôžkové apartmány / 3 × 2 + 3 /
  • jeden šesťlôžkový apartmán / 1 × 2 + 4 /

Pre najmenších Vám pripravíme aj detskú postieľku.

V chate pre 6 rodín má každý apartmán 2 miestnosti

Súčasťou prvej - vstupnej miestnosti je kuchynský kút, chladnička, jedálenský stôl a stoličky, rozkladacia gaučová súprava a potešia Vás aj rôzne interiérové doplnky.
Druhou miestnosťou je spálňa, v ktorej nájdete manželskú posteľ, TV + SAT a skriňa.
Apartmán je vybavený samostatným WC a sprchovacím kútom.

Poznámky k chate pre 6 rodín

Apartmány čísla 1, 2, 5 sa nachádzajú na prízemí, apartmány čísla 3, 4, 6 na poschodí. V apartmáne č. 5 je krb. Stačí si len vybrať to najlepšie pre Váš oddych.
Chata Zinka je rozdelená na dve časti "stará" a "nová". V "starej" prednej časti nájdete apartmán č.5 a apartmán č.6, má osobitný vchod a chodbu. 
V "novej" zadnej časti nájdete apartmány č.1, 2 na prízemí a apartmány č.3 a 4 v podkroví. Táto časť má osobitný vstup a chodbu, nájdete tu tiež lyžiareň, spoločenskú a hraciu miestnosť.

Apartmány a izby

Štandardom v šiestich priestranných, útulne a prakticky zariadených apartmánoch sú bielučké osušky a uteráky, fén ako aj základné toaletné potreby. Všetky postele sú vybavené kvalitnými strunovými matracmi a na štedrých prístelkách nájdete rovnako kvalitné penové matrace. Taktiež sme si dali záležať na výbere posteľných textílií z damasku, paplónov, páperových a antialergických vankúšov.

Ubytovanie - apartmány

Čo hovoria naši hostia

Tatiana Š. ()

Dátum hodnotenia: 02 Feb, 2026

Na chate Zinke sme s rodinami boli už niekoľkokrát v zimnom období. Nedáme dopustiť na milých domácich, pekné a čisté ubytovanie a hlavne všetko za dobrú cenu.

Adela ()

Dátum hodnotenia: 24 Aug, 2025

Chata Zinka je pre nás ako druhý domov, do ktorého sa s radosťou vraciame každé leto, dospelí aj deti všetkých vekových kategórií si tu nájdu veľa možností zábavy aj relaxu, krásna príroda a turistické chodníky na dosah. Už teraz sa tešíme na ďalšiu Zinku!

Martina Durcekova ()

Dátum hodnotenia: 30 May, 2025

Chata je veľmi pekne zariadená, dobre vybavená. Všetky apartmány boli priestranné, rovnako aj spoločenská miestnosť. Na dvore je dostatok miesta, pre deti je malé ihrisko. So všetkým sme boli spokojní. Majiteľ komunikoval veľmi ochotne.

Martin ()

Dátum hodnotenia: 30 May, 2025

Úplne všetko bolo skvelé, páčilo sa nám tu.

Monika Števčaťová ()

Dátum hodnotenia: 30 May, 2025

Chata bola veľmi priestranná, vhodná pre veľké skupiny ľudí. Kuchyňa bohato vybavená, deti ocenili stolný futbal a my starší wellness, vírivku a vyhrievaný bazén. Chata je veľmi čistá, nemáme čo vytknúť. Majiteľ veľmi ústretový a ochotný pomôcť.

Denisa Křeháčková ()

Dátum hodnotenia: 30 May, 2025

Krásná chata v bezvadné lokalitě. Poloha je v podstatě hned vedle Ski areálu Mýto, kam se dá dojít i pěšky s lyžemi na rameni :-). Čisté a vkusně zařízené pokoje s vlastní kuchyňkou a sociálním zázemím. Společenská místnost s kompletně vybavenou kuchyní vhodná ke společně stráveným večerům i ve větší skupině lidí. Komůrka na odložení lyžařského vybavení se sušákem na boty je další velké plus. Nemluvě o venkovním wellness, které potěší i nelyžaře. Moc rádi se sem každý rok vracíme na firemní akce.

marcel lavrinc ()

Dátum hodnotenia: 30 May, 2025

Starostlivy majitel - kazde rano rozkladal ohen do krbu v spolocenskej miestnosti a piecky v saune a bazene, vsetko pripravil ;) velke plus...

Kristína Polakovičová ()

Dátum hodnotenia: 30 May, 2025

Velmi pekna chata, velka kapacita so 6 apartmanmi. V kazdom vlastna kupelka s wc a mala kuchynka. Vyborne wellness. Kuchyna skvelo vybavena, nic nechybalo. 2 chladnicky, umyvacka, velky stol v jedalni. Majitel velmi prijemny, vyborna komunikacia. Moderny pristup (check in online, platba kartou). Odporucam.

Jana ()

Dátum hodnotenia: 30 May, 2025

Všetkému dávame plný počet bodov, boli sme tu veľmi spokojní :)

Matus ()

Dátum hodnotenia: 30 May, 2025

Čistota aj vybavenie objektu boli top. Nikdy sme neboli na tak dobre vybavenej chate čo sa týka kuchyne, hrncov aj tanierov. Wellness bolo vynikajúce. Jediné čo nám vadilo bolo, že niektoré spálne sú situované na hlavnú cestu.

Oliver ()

Dátum hodnotenia: 30 May, 2025

S pobytom sme boli spokojní. Ďakujeme.

Vladimír ()

Dátum hodnotenia: 03 Oct, 2021

Aj ja sa pridávam k pozitívnym referenciám. Chata absolútne super, prostredie nádherné. Super predĺžený víkend 😊 Určite sa vrátime

Tomáš Vrbovský ()

Dátum hodnotenia: 25 Feb, 2021

Na Chate Zinka sme boli partia už druhýkrát a nikdy sme sa nenudili. Je tam čo robiť za dobrého aj zlého počasia. Apartmány sú veľmi pekné a udržiavané a kompletne vybavené. Kladne hodnotím aj veľkú spoločenskú miestnosť s dvomi kuchyňami, krbom, tv a skvelým ozvučením. K dispozícii je aj bezplatné wifi v celej chate. Von je k dispozícii krb, plynový gril a veľký altánok so sedením čo ocenia veľké partie alebo rodiny s deťmi. Taktiež na dvore je k dispozícii domček s fínskou a infra saunou, vírivka a kaďa. Pre deti je k dispozícii detské ihrisko. V prípade záujmu Vám za príplatok priateľský majiteľ Michal vie zabezpečiť doplnkové služby ako catering atď. Chata je situovaná v peknej dedinke Mýto pod Ďumbierom na kľudnom mieste pri potôčiku. Chatu Zinku hodnotím a dávam 5* z piatich.

Peter Voroš ()

Dátum hodnotenia: 25 Feb, 2021

Nádherne miesto, super čistota a úroveň kvality služieb. Top miesto naozaj. Ideálne miesto na oddych ako aj na zábavu.

Štefánia ()

Dátum hodnotenia: 25 Feb, 2021

Chata Zinka je skvelé miesto na oddych, s veľmi milým ochotným majiteľom, vybavenie naozaj super, vírivka, sauny, stolný futbal, vonkajšie posedenie s grilom, prostredie okolo chaty, útulné zariadenie, skrátka všetko....

Jana ()

Dátum hodnotenia: 25 Feb, 2021

Nadherne prostredie a super chata. Vyborne sme si oddychli. Bolo nas 6 rodin s malymi detmi a bolo tu pre kazdeho nieco. Vylety do okolia boli super, ale najradsej sme boli na chate a jej dvore a vyuzivali sme jej moznosti. Parada. Pan majitel ma vsetko perfektne premakane, co nase narocne a roznorode rodinky urcite ocenili.

Zuzana Kubičová ()

Dátum hodnotenia: 25 Feb, 2021

Krasne prostredie, vyhlad, klud, perfektne vybavenie apartmanu

Katka ()

Dátum hodnotenia: 25 Feb, 2021

Chata Zinka je skvelé miesto na oddych, tak dobre sme si už dlho neoddýchli :-) Výborná sauna aj jacuzzi. Útulná čistá izba, vybavenie izby v pohode, super spoločenská miestnosť. Zurčiaci potôčik, pohoda, ihrisko, proste všetko sme si užili. Všetko zodpovedá popisu aj fotkám. Ďakujeme za skvelú dovolenku, určite sa radi vrátime. Katka

Silvia Končoková ()

Dátum hodnotenia: 25 Feb, 2021

Perfektná chata s veľmi milým ochotným majiteľom, vybavenie naozaj super, vírivka, sauny, stolný futbal, vonkajšie posedenie s grilom, prostredie okolo chaty, útulné zariadenie, skrátka všetko....veľmi sme si to užili...(:

Marek Fedoročko ()

Dátum hodnotenia: 25 Feb, 2021

Veľmi príjemný personál, vždy ochotný pomôcť a vyjsť v ústrety. Izby čisté.

Možno doplniť rýchlovarnú kanvicu do apartmánov do kuchyniek pre rýchlejšie urobenie čaju a kávy. Zohrievanie vody na dvojplatničke trvalo večnosť :-)

Michaela Fikselová ()

Dátum hodnotenia: 25 Feb, 2021

wellness uplne perfektny - sauna, virivka super, velka spolocenska miestnost

Peter Voros ()

Dátum hodnotenia: 25 Feb, 2021

Sauna a priestory wellnessu, izby a lokalita. Veľmi príjemné prostredie a super majiteľ. Trochu menšia kuchyňa v spoločenskej miestnosti, ktorá sa ale ide prerábať, takže všetko OK.

Karol B. ()

Dátum hodnotenia: 25 Feb, 2021

Perfektne sme si to užili v saune aj jacuzzi. Zahrali sme si turnaj v stolnom futbale. Mali sme k dispozícii aj gulečník, aj keď tento sme nehrali. Ubytovanie perfektné, apartmány priestranné. Na 99% všetko bolo super.

Do budúcna by viac vyhovovala väčšia kuchyňa a špajza.

Ingemar Kulda ()

Dátum hodnotenia: 25 Feb, 2021

Chata Zinka je ukážka toho ako má vyzerať miesto kde človek vypne od bežnej reality. Navštívili sme ju už niekoľkokrát a cítime sa tu ako doma. Pán domáci vie v službách chodiť a dokáže vyhovieť požiadavkám aj náročného klienta. Určite doporučujem.

Mário Ručkay ()

Dátum hodnotenia: 25 Feb, 2021

Ústretovosť a ochota zo strany majiteľa, tiché prostredie, vyžitie sa pre detského klienta, fajčenie vymedzené len na vonkajšie priestory, čistota ubytovania i vonkajších priestorov.

negatíva: [email protected]. Dva upršané dni, ale na počasie personál nemá páky.

Zuzana, Nimnica ()

Dátum hodnotenia: 25 Feb, 2021

Veľmi sa nám páčilo. Interiér chaty krásne, útulne zariadený. Vybavenosť kuchynky na izbe a v spoločnej kuchyni perfektná (zbytočne som niesla svoje riady z domu - keďže som potrebovala navariť deťom). Exteriér plný aktivít a oddychových zón...Každý si našiel to svoje.....Krásne prostredie .... A to najhlavnejšie - treba pochváliť pána majiteľa - jeho prístup ku zákazníkom, ochota a láskavosť ...vidno že svoju prácu robí srdcom! Moc ďakujeme...a určite sa vrátime. Spokojní zákazníci z Nimnice

Solárová Zuzana ()

Dátum hodnotenia: 25 Feb, 2021

Výborné miesto, ako vždy! Radi prídeme opäť.

Lucia Kubíková ()

Dátum hodnotenia: 25 Feb, 2021

Ubytovanie a vybavenie chaty - ihrisko, jacuzzi, sauny, spolocenske hry, moznosti grilovat a opekat a prostredie s uzasnou prirodou splnilo maximalne poziadavky nasej rodiny.

Fedor Juran ()

Dátum hodnotenia: 25 Feb, 2021

Velmi dobre vybaveny komplex pre rodinnu aj skupinovu dovolenku v krasnom prostredi, s dobrou pristupnostou. Ochotny majitel s kvalitnymi informaciami.

Malo odkladacich priestorov. Zisla by sa bohatsia kuchynska vybava.

Veira ()

Dátum hodnotenia: 25 Feb, 2021

Neobmedzený vstup do sauny, lokalita - blízke možnosti lyžovania na Táloch a na Chopku. Super spoločenská miestnosť.

Jana B. ()

Dátum hodnotenia: 25 Feb, 2021

Veľmi milo nás prekvapila kvalita ubytovania a prístup majiteľa.

Štefan Palovič ()

Dátum hodnotenia: 25 Feb, 2021

poloha, tiché prostredie, ústretovosť majiteľa

nedostatočný príjem WiFi, zastaralý malý TV prijímač

Ľubomír Bandúr ()

Dátum hodnotenia: 25 Feb, 2021

Boli sme maximálne spokojní.

Maria T. ()

Dátum hodnotenia: 25 Feb, 2021

Korektny pristup, cistota stopercentna, krasne prostredie a chata, ktorej nechyba nic. Top Slovenska :)

Katarína L. ()

Dátum hodnotenia: 25 Feb, 2021

Apartmány boli tip-top, dokonale upratané. Uteráky aj posteľné prádlo voňavé a čisté. Voda vo vírivke vymenená, dreva na kúrenie dostatok. Chata vykúrená a všetko zodpovedalo fotkám na webe. Boli sme veľmi spokojní.

Ingrid T. ()

Dátum hodnotenia: 25 Feb, 2021

Chcem poďakovať pánovi Jorčíkovi, že sme mohli byť ubytovaní v chate Zinka. Je to čarovné miesto. Stačí sa posadiť na verandu, zatvoriť oči a započúvať sa do zurčiaceho potoka a nasávať vôňu okolia. Ale pohľad nesklame ani keď mate oči otvorene, pretože tak chata ako aj krásne okolie ponúka neskutočne veľa možnosti na oddych alebo turistiku. Na svoje si tu prídu všetky vekové kategórie. My sme v chate Zinka strávili 4 krásne dni a boli sme maximálne spokojní. Vrelo odporúčam každému...my sa tam určite ešte vrátime.

Slávka H. ()

Dátum hodnotenia: 25 Feb, 2021

Na chate Zinka sme už boli niekoľkokrát a stále sa tam radi vraciame, pretože je tam perfektne. Nemám čo vytknúť, cítime sa tam ako doma, služby, majitelia, okolie, čistota, proste super :):) nie 5 ale 10 hviezdičiek :)

Štefan Zachar ()

Dátum hodnotenia: 25 Feb, 2021

Perfektný prístup majiteľa, krásne prostredie, všetko pripravené včas, komfortné ubytovanie, kvalitná a chutná strava, perfektne pripravený výlet s návštevou salaša a ochutnávkou syra a žinčice... nič čo by sa dalo vytknúť

Maťo V. ()

Dátum hodnotenia: 25 Feb, 2021

Výborný víkend v príjemnom prostredí. So všetkým sme boli spokojní.

Marián V. ()

Dátum hodnotenia: 25 Feb, 2021

Príjemné prostredie s malým ihriskom pre deti v uzavretom dvore. Ľahký prístup na protiľahlú stranu a do lesíka. Príjemná bicyklovačka v okolí na málo frekventovanej cestičke pozdĺž celej obce.

Zuzana Solárová ()

Dátum hodnotenia: 25 Feb, 2021

Túto chatu sme si vybrali "náhodou" a skutočnosť predčila všetky naše očakávania. Bolo nás deväť priateľov a ani jeden z nás nenašiel žiadnu chybu. Krásna, čistá, útulná chata s komfortným vybavením, tu na vás pohoda dýcha z každého kúta, je tu všetko, čo potrebujete a keď máte k tomu také krásne počasie ako my, niet čo dodať! Pán Jorčík, skvelá práca! Držíme vám palce vo vašom podnikaní a tešíme sa na ďalšiu návštevu!

snáď jediné, čo nám chýbalo, bola špongia na riad v spoločnej kuchyni

Alexandra V. ()

Dátum hodnotenia: 25 Feb, 2021

krasne prostredie, velmi mily personal, vyborne pripraveny material o okoli chata dycha atmosferou, citili sme sa v nej velmi dobre a spalo sa nam este lepsie :) boli sme velmi spokojni - urcite sa vratime.

Peter Lendvai ()

Dátum hodnotenia: 25 Feb, 2021

Všetko v najlepšom poriadku odporúčam každému, je to skvelé miesto. služby 10 komunikácia 10 čistota 10 cena 10

Viera Kahunova ()

Dátum hodnotenia: 25 Feb, 2021

Všetko. A ticho a pohoda.

Mrázovci ()

Dátum hodnotenia: 25 Feb, 2021

Nádherné prostredie, super chata s výbornými službami, milí a ochotní majitelia. Všetci sme sa cítili skvele, a to sme boli 3 generácie... 8´)

Mindy ()

Dátum hodnotenia: 25 Feb, 2021

Such a good place to stay over, I stayed there for 2 night which was fantastic! I loved the sauna facility, such a good place to relax. And everything was just perfect, the room is lovely and functional can even cook there. Wifi can be accessed everywhere (except the cellar, but doesn't matter, who needs Internet when you're party). This is a place I would recommend and love to come back here again!

Annka ()

Dátum hodnotenia: 25 Feb, 2021

Boli sme na Chate Zinka s partiou mladých z celého sveta a užili sme si komfort na izbách, skvelé vyplnenie voľného času, neskutočne ústretových a nápomocných domácich a vynikajúce jedlo z domácich surovín. Určite sa sem vrátime. Ďakujeme!

Martina ()

Dátum hodnotenia: 25 Feb, 2021

Keďže som milovník saunovania, tak si neviem vynachváliť súkromnú sauničku. Nie je nič lepšie, ako poriadne vyhriata sauna, keď je vonku zima a sneh, v ktorej sme si sami zakúrili a potom skočenie do ochladzovacieho bazéna, na ktorom plávajú kúsky ľadu. :) Chata Zinka má avšak svoje čaro v každom období roka, nie len v zime. Skvelé ubytovanie, krb, relax, sauna, kopce, pekná záhradka, opekanie, hojdačka, zurčiaci potôčik, salaše v okolí (určite vám odporúčam ísť na plnené makové šúľance - Michal, majiteľ chaty, vám s radosťou povie, kde ich nájdete). Teším sa, keď opäť pôjdem na chatu Zinka. :) Jedným slovom - SUPER.

Slávka ()

Dátum hodnotenia: 25 Feb, 2021

Chata Zinka je č.1. Keď chodievame na chaty, nezvykneme ísť 2x na tú istú. Avšak na Zinke sme už boli už 5 alebo 6x a chystáme sa zas. Sauna, vírivka, vonkajší posed, grilovanie, či veľká spoločenská miestnosť, stolný futbal v priestoroch chaty a skvelý hostiteľ dodáva chate neopísateľnú charizmu. A detaily ako hojdacia sieť, či krásne kvetinky dolaďujú domácku atmosféru. Za veľké plus považujem aktuálne možnosti a aktivity v danom regióne, o ktorých nás vždy skvelo Michal, majiteľ chaty, informuje. Už teraz sa teším na ďalšiu návštevu. Ďa-ku-je-me :)

Martin ()

Dátum hodnotenia: 25 Feb, 2021

Krasne prostredie, cista a velmi pekne zariadena chata, perfektny oddych. Boli sme cela rodina a velmi dobre sme si oddychli. Taktiez nam vyhovovalo, ze z chaty je blizko do prirody a naskok aj do mesta na nakup. Urcite odporucame a ked bude prilezitost, pojdeme znova. Pozdravujem pana majitela - clovek na spravnom mieste.

Zuzana P. ()

Dátum hodnotenia: 25 Feb, 2021

Na vašej chatke sme strávili pár príjemných dní. Ubytko krásne, čisté, útulné, prostredie taktiež nádherné. Boli sme so všetkým veľmi spokojní, aj deťom sa veľmi páčilo. Pán majiteľ bol veľmi milý, ochotný a ústretový. Určite sa na chatu ešte tento rok vrátime :-))))

Janica, Radica a Marek ()

Dátum hodnotenia: 25 Feb, 2021

Príjemné miesto, čisté, zariadené, wellness pri potoku, gril a ochotní a milí majitelia. Perfektné, boookujeme každý rok.

Matúš T ()

Dátum hodnotenia: 25 Feb, 2021

tak pánečko domáci... :) nič nebudem písať... iba jedno. takto to má vypadať... ale smeti sme ti separovali... :D inak našli sme, ak si chce niekto prečítať nezávislú recenziu ...: http://www.milujemewellness.sk/chata-zinka-wellness/

Viktória A. ()

Dátum hodnotenia: 25 Feb, 2021

Chatu Zinku by som zhodnotila ako veľmi príjemnú, luxusom a prekvapením pre nás boli 2 sauny, vírivka, relaxačná miestnosť, kde sme si parádne oddýchli. Veľmi milý domáci a na výlet na Salaš Zbojská nemôžeme zabudnúť. Všetkým vrelo odporúčam.

Ala ()

Dátum hodnotenia: 25 Feb, 2021

Všetko naj naj..najlepšia atmosféra, najlepšie ubytko, najlepšie ceny, najlepší ubytovatelia, tým pádom najlepšie som sa mala..prídem zas.

Alena ()

Dátum hodnotenia: 25 Feb, 2021

Super výborne hojdacie kreslo:) a parádna vec disc golf.

Zuzka ()

Dátum hodnotenia: 25 Feb, 2021

Prekrásna romantika v zasneženej chatke, super sú tiež aktivity na večer a wellness. A špičkový snehuliak...:D tešíme sa aj na budúce :)))

Fero ()

Dátum hodnotenia: 25 Feb, 2021

skutočná pohodička páčilo sa :)

Lenka ()

Dátum hodnotenia: 25 Feb, 2021

Na tejto skvelo zariadenej chate sme stravili uz 3 vikendy na firemnom teambuildingu. Vzdy sa sem radi vratime, pre vsetky aktivity, ktore chata a jej okolie ponukaju. Plus mily pristup majitelov a je to idealne miesto na taketo akcie.

Zimovi Z Brna ()

Dátum hodnotenia: 25 Feb, 2021

S ubytovaním sme boli veľmi spokojní, k tomu sauna a vírivka a golf a krásne Tatry, čo viac si priať. Určite ešte niekedy prídeme.

Michaela ()

Dátum hodnotenia: 25 Feb, 2021

Na chate Zinka som bola niekoľkokrát. Cestujem s deťmi, som náročná na čistotu a pohodlie. Cítila som sa ako doma - v príjemnom a vkusnom prostredí s perfektným servisom a veľmi príjemným prístupom rodiny Jorčíkových. Takto si predstavujem služby v cestovnom ruchu. Ďakujem, vždy sa rada vrátim.

Ľubka ()

Dátum hodnotenia: 25 Feb, 2021

Neskutočný luxus a výnimočná energia očarili mňa aj môjho priateľa. Boli to 3 nádherné romantické dni s priateľom a s najbližšími kamarátmi, cez ktoré som sa cítila božsky uvoľnená, vďaka prostrediu som sa vyliečila zo zápalu pľúc, nabrala som novú silu do života a čo bolo najpodstatnejšie, že sa magicky upevnili vzťahy. Neviem sa dočkať, keď sa znovu zobudím do krásneho rána na Zinke a ucítim vôňu prírody.

Dominguez ()

Dátum hodnotenia: 25 Feb, 2021

Uzastne prostredie, skvela zabava, a luxus v podobe saun a jacuzzi...odporucam !!!

Veronika Kruteková ()

Dátum hodnotenia: 25 Feb, 2021

Najkrajšie, najlepšie a najluxusnejšie ubytko v akom som bola :) Vírivka, sauničky, kľudová soľná miestnosť a večer gulečník v spoločenskej miestnosti. Určite musíme prísť aj v lete aby sme si užili aj krásnu záhradu s opekaním :) Určite sa ešte prídeme pozrieť :)

Tomáš ()

Dátum hodnotenia: 25 Feb, 2021

Zdravím vás, bolo perfektne. Skvelý teambuilding ste nám vymysleli, odporúčam. Tomáš

Laura P. ()

Dátum hodnotenia: 25 Feb, 2021

Dobrý deň, strávili sme u Vás perfektný víkend, kvitujem hlavne prijemne prostredie pre strávenie s deťmi, ďakujeme ešte raz, pozdravuje celá zostava a prídeme zas. :))))

Gitka ()

Dátum hodnotenia: 25 Feb, 2021

Na chate Zinke sme s rodinami boli už niekoľkokrát. Nedáme dopustiť na milých domácich, štýlové ubytko a hlavne všetko za dobrú cenu. Najviac sa však vždy teším čo zase si majitelia pre nás na nový rok pripravia. Gitka

Firma FUTURUM MMI, s.r.o. využíva technológiu cookies na účely zaznamenávania informácií o Vašich záujmoch.

Súhlasím

Napíšte majiteľovi

Napíšte majiteľovi